System

MC PW Parallel Window

Parallellt öppnande fönstersystem med termisk isolering

Bilder & ritningar

Här presenterar vi visualiseringar och ritningar för systemet. Vilket ger en tydlig bild av systemets design, struktur och funktionalitet. 

Kortfattat om​ MC PW Parallel Window

MC PW är ett innovativt, parallellt öppnande fönstersystem som kombinerar modern estetik med förbättrad ventilation och energieffektivitet. Genom sin smarta öppningsmekanism och flexibla design är det en idealisk lösning för fasader där både funktionalitet och enhetligt utseende är viktiga.
Teknisk specifikation
  • Glas
    2-glas, 3-glas
  • Säsong
    Vår/Höst, Vinter
  • Glasningsintervall
    24, 24-52 mm, 25, 26, 27, 28, 29, 30, 31, 32, 33, 34, 35, 36, 37, 38, 39, 40, 41, 42, 43, 44, 45, 46, 47, 48, 49, 50, 51, 52
  • Profilbredd
    117 mm
  • Material
    Aluminium
  • Lufttäthet
    Klass 4
  • Vattentäthet
    Klass RE
  • Vindbelastning
    Klass C5

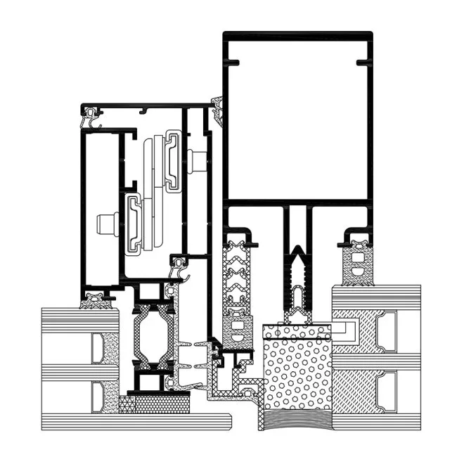
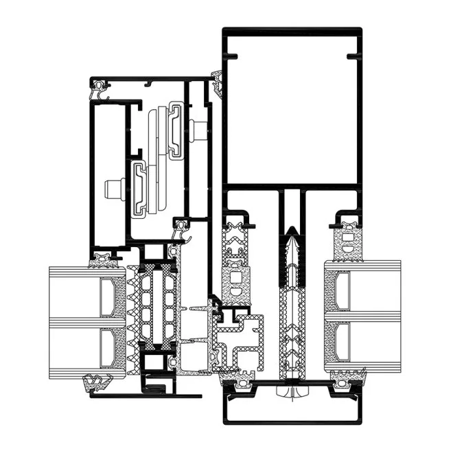
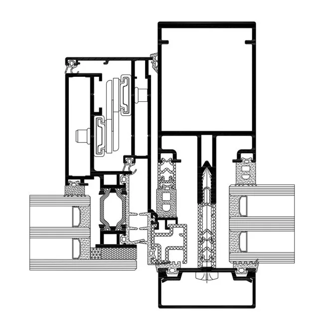
MC PW är ett fönstersystem där fönsterbågen öppnas parallellt med fasaden, vilket bevarar fasadens enhetliga utseende även i öppet läge. Systemet är baserat på MC Wall och har en tre-kammars konstruktion med termisk isolering. Förbättrad energieffektivitet kan uppnås genom extra isoleringskomponenter, såsom underglasinsatser och isolerande mellanlägg.

  • Parallell öppning genom ett specialanpassat saxbeslag
  • Antalet och placeringen av saxbeslagen anpassas efter fönstrets storlek och glasets vikt
  • Flerpunktslåsning förbättrar tätningen och säkerheten
  • Manuell öppning med två motsatta handtag eller elektrisk öppning via servomotorer
  • Möjlighet att utformas som topphängt fönster, där den nedre delen lyfts utåt
  • Optimerad ventilation, där luften strömmar fritt både inåt och utåt för bättre luftcirkulation och ökad komfort jämfört med traditionella fönster

Relaterade produkter

Sapa Fasad 4150 SSG – Structural Sealant Glazing

Sapa Fasad 5050 SG – System Glazing

Sapa Fasad 4150 Isolerad

FR 90 Slide

MC Passive +

Meny

Våra system