System

MC Wall

Modernt fasadsystem för glasade väggar

Bilder & ritningar

Här presenterar vi visualiseringar och ritningar för systemet. Vilket ger en tydlig bild av systemets design, struktur och funktionalitet. 

Kortfattat om​ MC Wall

MC Wall är ett mångsidigt och hållbart fasadsystem för moderna glasväggar, med anpassningsbara öppningslösningar, hög lastkapacitet och estetisk flexibilitet. Det förenklar installationen av isolering och skyddsmembran, vilket gör det till en optimal lösning för både bostads- och kommersiella byggnader.
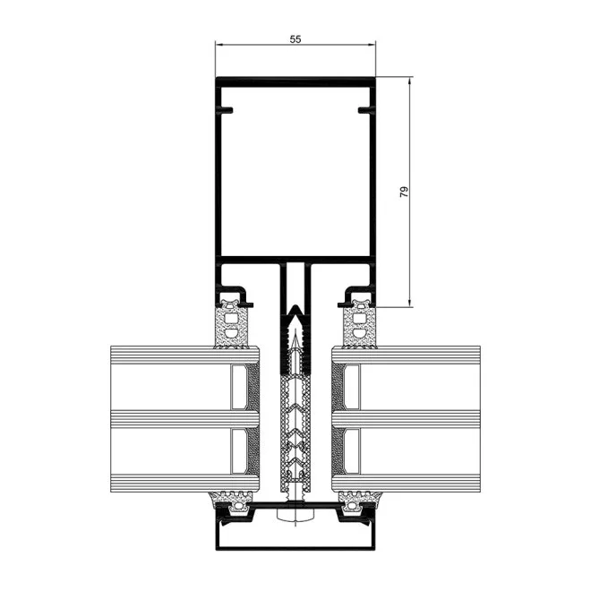
Teknisk specifikation
  • Glas
    2-glas, 3-glas, Enkelglas
  • Akustik
    45dB
  • Säsong
    Vår/Höst, Vinter
  • Bladdjup
    10-326 mm
  • Glasningsintervall
    10, 11, 12, 13, 14, 15, 16, 17, 18, 19, 20, 21, 22, 23, 24, 25, 26, 27, 28, 29, 3, 30, 31, 32, 33, 34, 35, 36, 37, 38, 39, 4, 40, 41, 42, 43, 44, 45, 46, 47, 48, 49, 5, 50, 51, 52, 53, 54, 55, 56, 57, 58, 59, 6, 60, 61, 62, 63, 64, 65, 66, 67, 68, 69, 7, 70, 71, 72, 73, 74, 75, 76, 77, 78, 79, 8, 80, 81, 82, 83, 84, 85, 86, 87, 88, 89, 9
  • Profilbredd
    55 mm
  • Material
    Aluminium
  • Lufttäthet
    Klass AE
  • Vattentäthet
    Klass RE
  • Vindbelastning
    Klass EX

MC Wall är ett system för utformning av moderna glasfasader och fungerar som grund för fasadlösningar såsom MC Passive+, MC Glass, MC Fire och MC Glass Fire (brandskyddslösning).

Systemet erbjuder flexibla installationsmöjligheter och inkluderar öppningsbara fasadelement såsom parallellt öppnande fönster (MC PW) och takfönster (MC RW).

  • Synlig bredd på stolpe-balkkonstruktionen: 55 mm
  • Fasaden byggs upp av stolpar och tvärbalkar som förbinds med rostfria bultar (2 x ø 6 mm per förband), vilket ger hög lastkapacitet både mot vindtryck och fyllnadslast. Lösningen möjliggör även användning av traditionella tvärbalksfästen eller skruvmonterade tvärbalkar från framsidan.
  • Ett brett urval av stolpar och tvärbalkar anpassas efter statiska krav.
  • Isolatorer kan anpassas efter fyllningens tjocklek.
  • Systemet förenklar applicering av ång- och diffusionsspärrar enligt de senaste riktlinjerna för montering av aluminiumfasader.
  • Ett stort utbud av dekorativa täcklock möjliggör olika estetiska uttryck på fasaden.

MC Wall kombinerar hållbarhet, flexibilitet och modern design för både bostads- och kommersiella fasader.

Relaterade produkter

Sapa Fasad 4150 SSG – Structural Sealant Glazing

Sapa Fasad 4150 PH – Passivhus

Sapa Fasad 4150 SX – Superisolerad

FR 90 Slide

Modular Facade

Meny

Våra system