System

MC RW

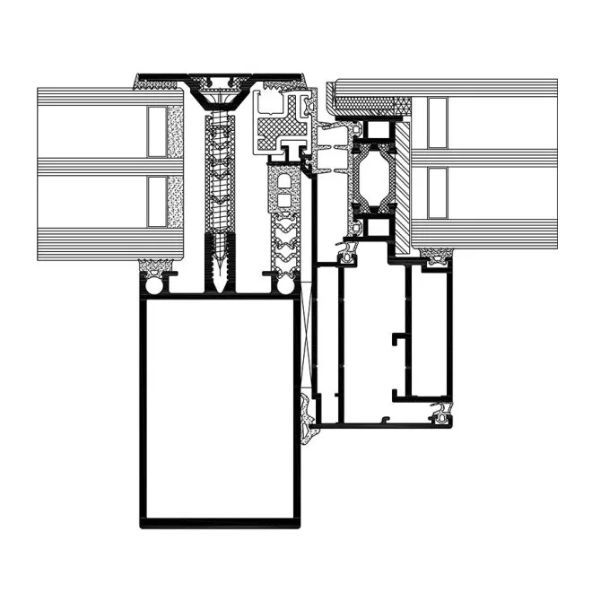
Takfönster med termisk isolering för ventilationslösningar

Bilder & ritningar

Här presenterar vi visualiseringar och ritningar för systemet. Vilket ger en tydlig bild av systemets design, struktur och funktionalitet. 

Kortfattat om​ MC RW

MC RW är ett flexibelt och energieffektivt takfönstersystem för ventilationslösningar, med en robust konstruktion och anpassningsbar installation för olika taklutningar. Tack vare integrerade dränerings- och ventilationsfunktioner samt kompatibilitet med både manuella och elektriska öppningsmekanismer, erbjuder systemet hög funktionalitet och anpassningsbarhet.
Teknisk specifikation
  • Glas
    2-glas, 3-glas
  • Säsong
    Vår/Höst, Vinter
  • Bladdjup
    81 mm
  • Glasningsintervall
    28, 29, 30, 31, 32, 33, 34, 35, 36, 37, 38, 39, 40, 41, 42, 43, 44, 45, 46, 47, 48, 49, 50, 51, 52, 53, 54, 55, 56
  • Profilbredd
    87 mm
  • Material
    Aluminium
  • Lufttäthet
    Klass 4
  • Vattentäthet
    Klass RE
  • Vindbelastning
    Klass CE

MC RW är ett takfönster baserat på MC Wall-fasadsystemet och används främst för utformning av ventilationsluckor. Det har en tre-kammars konstruktion med termisk isolering, och ytterligare isoleringskomponenter, såsom underglasinsatser och isolerande mellanlägg, kan användas för att förbättra energieffektiviteten.

  • Kan installeras på tak med en lutning mellan 5° och 75°
  • Integrerat dränerings- och ventilationssystem anpassat till stolpe-balkfasader
  • Maximal vikt upp till 150 kg, beroende på val av öppningsmekanism och gångjärn
  • Stödjer ett brett utbud av marknadsstandardiserade stängningssystem
  • Manuell eller elektrisk öppning möjlig
  • Anpassat för glastjocklekar från 28 till 46 mm

Relaterade produkter

Sapa Fasad 4150 PH – Passivhus

Sapa Fasad 5050 SG – System Glazing

Sapa Fasad 4150 SX – Superisolerad

FR 90 Slide

MC Passive +

Meny

Våra system