System

FR 90 Slide

Termiskt isolerat automatiskt brandskyddat dörrsystem (EI30)

Bilder & ritningar

Här presenterar vi visualiseringar och ritningar för systemet. Vilket ger en tydlig bild av systemets design, struktur och funktionalitet. 

Kortfattat om​ FR 90 Slide

FR90 är ett brandsäkert, automatiserat dörrsystem med EI30-klassning, utformat för funktionalitet, estetik och säkerhet. Med brandskyddande profilfyllningar, stora glasytor och enhetlig integration med FR90-systemet, är det en idealisk lösning för offentliga och kommersiella byggnader där brandskydd och automatisering är avgörande.
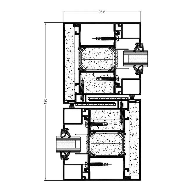
Teknisk specifikation
  • Bladdjup
    90mm, 97mm
  • Material
    Aluminium
  • Brandklass
    EI30
  • Öppningsmekanism skjutdörrar
    Automatisk/motordriven, Topphängd

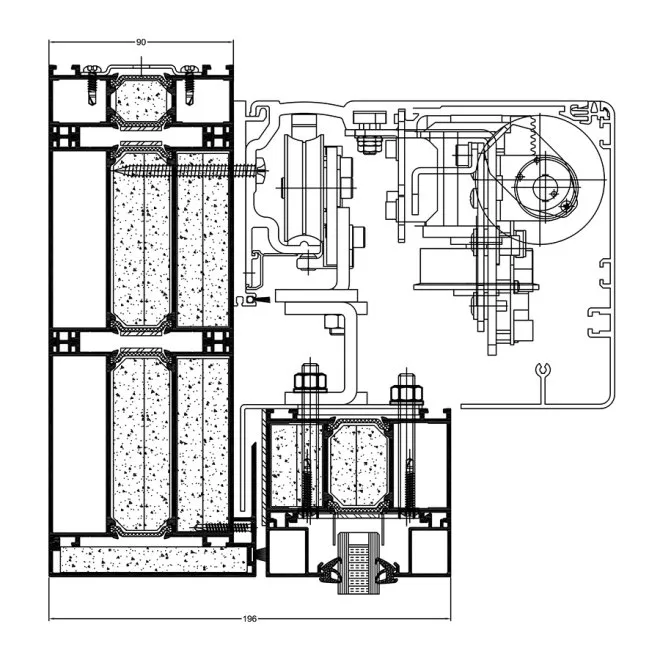
FR90 är ett automatiskt brandskyddat dörrsystem med EI30-brandklassning, baserat på FR90-plattformen och certifierat enligt PN-EN 13501-2:2016-07 och PN-EN 1634-1+A1:2018-03. Systemet kombinerar hög brandsäkerhet med estetik och funktionalitet, vilket gör det till en pålitlig lösning för moderna byggnader.

Systemegenskaper:

  • Brandklassning: EI30
  • Bärande konstruktion:
    • Profiler med brandskyddande fyllningar i kammare
    • Enhetligt kompatibelt med FR90-systemet
  • Estetisk och funktionell design:
    • Labyrintförband för en stilren och brandsäker anslutning mellan dörrbladen
    • Symmetrisk glasning för ett harmoniskt utseende
  • Mått och glasalternativ:
    • Maximal strukturstorlek: 4900 × 3500 mm
    • Maximal glaspanelstorlek: 1193,5 × 2339 mm
    • Maximal dörrbladsstorlek: 1369 × 2472 mm (med hakförband)
  • Automatisering:
    • Dorma-lösning för automatiserad drift
  • Konfigurationsmöjligheter:
    • Dubbeldörrar
    • Externt skjutbara dörrar
    • Sidoljus och överljus

Relaterade produkter

Sapa Fasad 4150 PH – Passivhus

Sapa Fasad 5050 SG – System Glazing

Sapa Fasad 4150 SX – Superisolerad

Sliding Shutters

MC Passive +

Meny

Våra system