System

Modular Facade

Prefabricerat fasadsystem med förbättrad termisk isolering

Bilder & ritningar

Här presenterar vi visualiseringar och ritningar för systemet. Vilket ger en tydlig bild av systemets design, struktur och funktionalitet. 

Kortfattat om​ Modular Facade

Detta fasadsystem erbjuder en energieffektiv och snabbt monterad lösning genom prefabricerade segment med förbättrad isolering och hög täthet. Möjligheten att integrera fönster, dörrar och solskydd gör det flexibelt för både bostads- och kommersiella byggnader, medan robusta förstärkningsalternativ säkerställer långvarig hållbarhet.
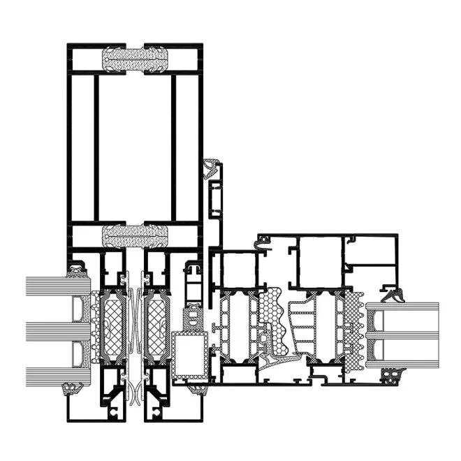
Teknisk specifikation
  • Glas
    2-glas, 3-glas, Enkelglas
  • Säsong
    Vår/Höst, Vinter
  • Bladdjup
    75mm, 85mm
  • Glasningsintervall
    10, 11, 12, 13, 14, 15, 16, 17, 18, 19, 20, 21, 22, 23, 24, 25, 26, 27, 28, 29, 30, 31, 32, 33, 34, 35, 36, 37, 38, 39, 40, 41, 42, 43, 44, 45, 46, 47, 48, 49, 50, 51, 52, 53, 54, 55, 56, 57, 58, 59, 6, 60, 7, 8, 9
  • Profilbredd
    55 mm
  • Material
    Aluminium
  • Lufttäthet
    Klass 5
  • Vattentäthet
    Klass RE
  • Vindbelastning
    Klass C5

Detta system är utformat för att skapa vertikala ytterfasader med hög termisk prestanda. Det består av prefabricerade aluminiumramar med glas- eller annan fyllning, som monteras på plats med fogar tätade med EPDM-packningar.

  • Segmenten kan vara enkla eller dubbla (med mittstolpe), vilket minskar den totala installationstiden
  • Kan integreras med fönster- och dörrsystem från Aliplast
  • Möjlighet att montera solskyddssystem som persienner och jalusier på insidan av fasadprofilerna
  • Profiler kan förstärkas med aluminium- eller ståldelar för ökad hållfasthet
  • Hög täthet tack vare EPDM-packningar, med fyra tätningsbarriärer vid segmentfogar
  • Effektiv värmeisolering genom 42 mm polyamid- eller Noryl-isolerinsatser och isoleringsmaterial mellan dem
  • Fullständig verkstadsförberedelse, där segmenten fästs på byggnadens primärstruktur med justerbara aluminium- och rostfria stålfästen, vars infästning analyseras av en behörig konstruktör

Relaterade produkter

Sapa Fasad 4150 SSG – Structural Sealant Glazing

Sapa Fasad 4150 SX – Superisolerad

Sun Protection

Sliding Shutters

MC PW Parallel Window

Meny

Våra system