System

MC Glass

Halvstrukturellt fasadsystem med minimalistisk design

Bilder & ritningar

Här presenterar vi visualiseringar och ritningar för systemet. Vilket ger en tydlig bild av systemets design, struktur och funktionalitet. 

Kortfattat om​ MC Glass

MC Glass är ett exklusivt fasadsystem som erbjuder en minimalistisk, helglasad exteriör utan synliga aluminiumprofiler. Med hög energieffektivitet, flexibel design och innovativ konstruktion är det en idealisk lösning för moderna fasader där både estetik och prestanda är viktiga.
Teknisk specifikation
  • Glas
    2-glas, 3-glas
  • Säsong
    Vår/Höst, Vinter
  • Bladdjup
    10-326 mm
  • Glasningsintervall
    30, 31, 32, 33, 34, 35, 36, 37, 38, 39, 40, 41, 42, 43, 44, 45, 46, 47, 48, 49, 50, 51, 52, 53, 54, 55, 56, 57, 58, 59, 60, 61, 62, 63, 64, 65, 66, 67, 68, 69, 70, 71, 72, 73, 74, 75, 76, 77, 78, 79, 80, 81, 82, 83, 84, 85, 86, 87, 88, 89
  • Profilbredd
    55 mm
  • Material
    Aluminium
  • Lufttäthet
    Klass AE
  • Vattentäthet
    Klass RE
  • Vindbelastning
    Klass EX

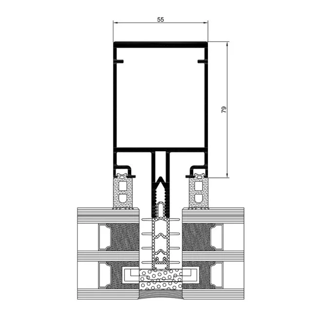
MC Glass är ett halvstrukturellt fasadsystem som skapar en slät, enhetlig glasfasad utan synliga aluminiumprofiler på utsidan. Endast glasfyllningar, separerade av strukturella silikongap, är synliga utifrån.

  • Synlig bredd på stolpe-balkkonstruktionen: 55 mm
  • Glasenheter har specialprofilerade fickor och rännor där monteringsplattor fäster fyllningarna i fasadramen
  • Hög termisk prestanda, med ett Uᶠ-värde från 0,66 W/m²K, tack vare innovativa isoleringsmaterial
  • Ett brett urval av stolpar och tvärbalkar anpassade för olika statiska krav
  • Möjlighet att skapa olika estetiska uttryck, inklusive horisontella eller vertikala linjer
  • Dekorativa täcklock i flera utföranden för en modern och unik fasaddesign

Relaterade produkter

Sapa Fasad 5050 SG – System Glazing

Sliding Shutters

Modular Facade

MC Passive +

Meny

Våra system