System

FR 90

Termiskt isolerat brandskyddssystem för inomhus- och utomhusbruk

Bilder & ritningar

Här presenterar vi visualiseringar och ritningar för systemet. Vilket ger en tydlig bild av systemets design, struktur och funktionalitet. 

Kortfattat om​ FR 90

FR90 är ett avancerat brandskyddssystem med hög termisk isolering, anpassat för både inomhus- och utomhusbruk. Med brandklass upp till EI120, flexibla fyllningsalternativ och hög ljudisolering (upp till 47 dB) är det en idealisk lösning för byggnader där brandskydd, energieffektivitet och ljudkomfort är avgörande. Systemet erbjuder enkel installation och prefabricering, samt möjligheten att integrera säkerhets- och ventilationsfunktioner.
Teknisk specifikation
  • Glas
    2-glas, 3-glas, Enkelglas
  • Säsong
    Sommar, Vår/Höst
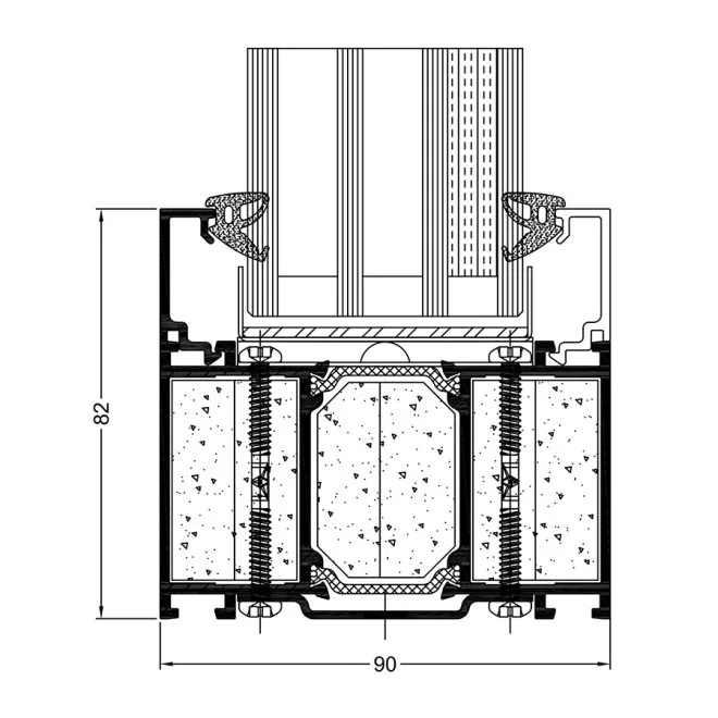
  • Bladdjup
    90mm
  • Glasningsintervall
    20, 21, 22, 23, 24, 25, 26, 27, 28, 29, 30, 31, 32, 33, 34, 35, 36, 37, 38, 39, 40, 41, 42, 43, 44, 45, 46, 47, 48, 49, 50, 51, 52, 53, 54, 55, 56, 57, 58, 59, 60, 61, 62, 63, 64, 65, 66, 67, 68, 69
  • Profilbredd
    90mm
  • Material
    Aluminium
  • Brandklass
    EI120, EI30, EI60, EI90
  • Lufttäthet
    Klass 4
  • Vattentäthet
    Klass 4A
  • Vindbelastning
    Klass C1

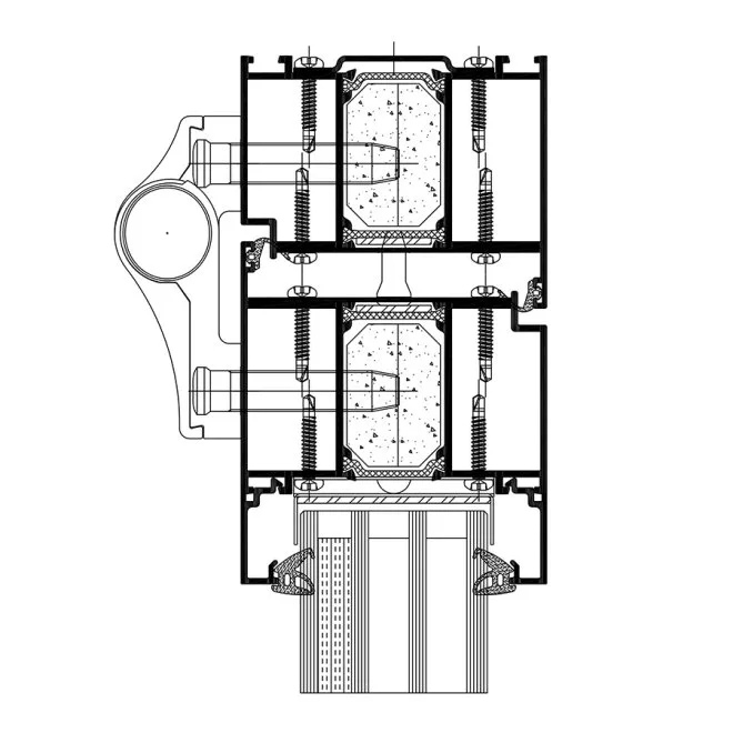
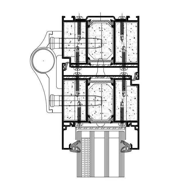
FR90 är ett brandskyddssystem med termisk isolering för både inomhus- och utomhusinstallationer. Systemet erbjuder brandklassning EI30, EI60, EI90 och EI120 för väggar samt EI30, EI60 och EI90 för dörrar.

Systemegenskaper:

  • Installation: Inomhus och utomhus
  • Profilkonstruktion:
    • För EI30: Mittkammare fylld med gipsbaserade fyllnadselement
    • För EI60 och högre: Alla kamrar fyllda med gips
  • Installationsdjup: 90 mm, kompatibelt med STAR-systemet
  • Fyllningsalternativ:
    • Trippelglas (20–69 mm)
    • Panelinfällning (60 mm):
      • Mineralullsfyllda paneler (Uᵖ = 0,57 W/m²K)
      • Gipsfyllda paneler
  • Konstruktionstyper: Enkel- och dubbeldörrar, fasta glaspartier
  • Maxdimensioner:
    • Fasta väggar (enkelt glas): 6000 × 3000 mm
    • Enkelbladiga dörrar: 1650 × 2870 mm
    • Dubbelfladiga dörrar: 3170 × 2870 mm
  • Låsning och beslag:
    • En- och flerpunktlås, elslutbleck, panikutgångsbeslag
    • Täckplåtsgångjärn, rullgångjärn, Inox-gångjärn
  • Övriga funktioner:
    • Alternativ med och utan tröskel
    • Dörrsparkskydd (hög sockelplatta)
    • Möjlighet att installera ventilationsgaller
    • Optimerade profiler för enklare tillverkning
    • Snabb och enkel prefabricering
    • Akustik: Ljudisolering 39–47 dB för EI30- och EI60-klassade dubbeldörrar

Relaterade produkter

Sapa Dörr 2060 EI15

Sapa Dörr 2060 E30

Sapa Dörr 2086 EI30

Sapa Dörr EI60 med rökgastäthet SA/S200

Sapa Dörr 3086 Butt Joint EI60

MC Glass Fire

Meny

Våra system