System

FR 65

Termiskt isolerat brandskyddssystem

Bilder & ritningar

Här presenterar vi visualiseringar och ritningar för systemet. Vilket ger en tydlig bild av systemets design, struktur och funktionalitet. 

Kortfattat om​ FR 65

FR65 är ett brandsäkert och termiskt isolerat system för inomhusbruk, anpassat för både dörrar och fasta väggar med brandklass EI30 och EI60. Det erbjuder flexibla fyllningsalternativ, hög ljudisolering, och enkel prefabricering, vilket gör det till en effektiv lösning för kommersiella och offentliga byggnader där brandskydd och funktionalitet är avgörande.
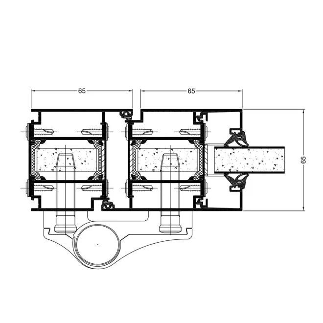
Teknisk specifikation
  • Glas
    2-glas, Enkelglas
  • Akustik
    33 dB, 34 dB, 35 dB, 36 dB, 37dB
  • Bladdjup
    65mm
  • Glasningsintervall
    17, 18, 19, 20, 21, 22, 23, 24, 25
  • Profilbredd
    65mm
  • Material
    Aluminium
  • Brandklass
    EI30, EI60

FR65 är ett brandskyddssystem med termisk isolering, utformat för inomhusinstallationer. Systemet bygger på FR65-plattformen och har brandklass EI30 och EI60 för både väggar och dörrar.

Systemegenskaper:

  • Installation: Inomhus
  • Profilkonstruktion: Symmetrisk design med en mittkammare fylld med gipsbaserade fyllnadselement
  • Installationsdjup: 65 mm, kompatibelt med Imperial och Ecofutural-system
  • Fyllningsalternativ: Dubbelglas (17–25 mm) eller gipsfyllda paneler (17 mm)
  • Konstruktionstyper: Enkel- och dubbeldörrar, fasta glaspartier
  • Maxdimensioner:
    • Fasta väggar EI30: 4930 × 3104 mm
    • Fasta väggar EI60: 4930 × 2904 mm
    • Enkelbladiga dörrar: 1400 × 2500 mm
    • Dubbelfladiga dörrar: 2690 × 2500 mm
  • Låsning: En- och flerpunktlås, elslutbleck, panikutgångsbeslag
  • Övriga funktioner:
    • Gångjärn med täckplåtar
    • Alternativ med och utan tröskel
    • Dörrsparkskydd (hög sockelplatta)
    • Optimerade profiler för enklare tillverkning
    • Akustik: Ljudisolering upp till 37 dB för dörrar och 33 dB för gipsfyllda paneler

Relaterade produkter

Sapa Dörr EI30 med rökgastäthet SA/S200

Sapa Dörr 3086 Butt Joint EI60

Sapa Dörr 2086 EI60

MC Fire Roof

MC Glass Fire

Genesis 75 EI30

Meny

Våra system