System

Office

The system is specially designed to create flexible and modern interior solutions suitable for both office environments and other commercial or public spaces.

Pictures & drawings

Here we present visualisations and drawings of the system. This gives a clear picture of the design, structure and functionality of the system. 

Briefly about Office

The system is specifically designed to create flexible and modern interior solutions suitable for both office environments and other commercial or public spaces. Its versatile design allows the structure to be adapted to different needs, whether to create open, airy office landscapes or more secluded workspaces for increased concentration and productivity.

One of the great advantages of the system is its easy adaptability, allowing it to be integrated into a variety of environments. Whether the space requires an open and bright feel or a more secluded and private atmosphere, the system can be configured to meet these requirements in a seamless way.

To ensure a comfortable and efficient working environment, the system is also compatible with sound-insulating glass. This helps to minimise disturbing noise and create a quiet and productive workplace, which is particularly important in open-plan offices or meeting rooms where acoustics play a crucial role.

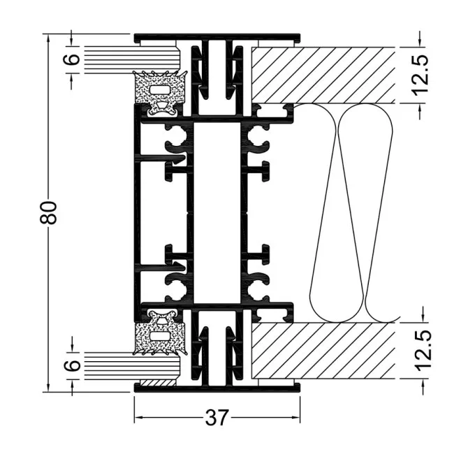
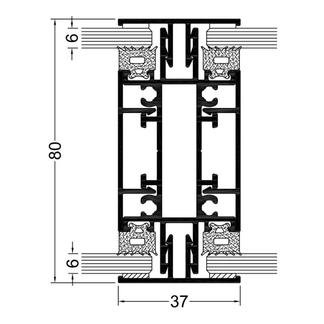
Technical specification
  • Glass
    Single glazing
  • Acoustics
    42dB
  • Glazing interval
    10, 11, 12, 13, 4, 5, 6, 7, 8, 9
  • Profile width
    51mm
  • Material
    Aluminium
  • Opening mechanism sliding doors
    Interior sliding doors

Chamber system without thermal insulation, intended to create internal partitions.

Various infill options are available, including glass, plasterboard and laminated furniture boards.
Possible filling thicknesses:

  • Glass: from 4 mm to 13.8 mm
  • Laminated furniture board: 18 mm
  • Plasterboard: 12.5 mm

The design of the system provides space for routing electrical cables and installing various types of switches, sockets and fuses.

The Office system has very good sound insulation properties, with a sound reduction value of up to Rw 42 dB.

Possible options:

  • Econoline system doors: both single and double doors with dedicated profile
  • Fully glazed doors with fittings from reputable manufacturers
  • Unrebated wooden doors with concealed hinges

The system is also designed for the possibility of using blinds integrated between the glass panes.

Aliplast Office combines functional and aesthetic values and is the perfect solution for dividing large office spaces.

The system's prefabrication is very easy and fast because time-consuming and costly machining has been reduced to a minimum.

A wide range of colours is offered, including the RAL palette (Qualicoat 1518), textured colours, Aliplast Wood Colour Effect (wood-like colours), Aliplast Loft View (colours imitating stone surfaces, Qualideco PL-0001), anodised colours (Qualanod 1808) and bi-colour."

Related products

VEKA Softline 82 MD

Sapa Glass Party 3050

Sapa Glass Party 3086

Sapa Window 1086 Light Wall - Inward or Fixed (sandwich panel)

Sapa Windows 1050

Ecofutural

Menu

Our systems