System

Genesis 75 EI30

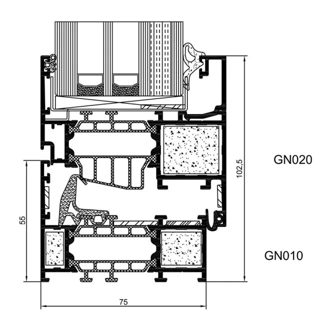
Pictures & drawings

Here we present visualisations and drawings of the system. This gives a clear picture of the design, structure and functionality of the system. 

Briefly about Genesis 75 EI30

Genesis 75 is a fire-resistant three-chamber window system with thermal insulation and fire classes EI30, EW30 and E30 according to EN 13501-2:2016-07. The system protects against fire in both directions and is based on the Genesis 75 platform with an installation depth of 75 mm.

With a wide choice of profiles and high functionality, Genesis 75 is an ideal solution for both public and private buildings where fire protection, energy efficiency and security are key requirements.

Technical specification
  • Glass
    2 glass, 3 glass
  • Seasonal
    Spring/Autumn, Winter
  • Leaf depth
    84mm
  • Glazing interval
    36, 37, 38, 39, 40, 41, 42, 43, 44, 45, 46, 47, 48, 49, 50, 51, 52, 53, 54, 55, 56, 57, 58, 59, 60, 61, 62, 63, 64, 65
  • Profile width
    75mm
  • Material
    Aluminium
  • Safety class
    RC2
  • Fire class
    E30, EI30, EW30
  • Airtightness
    Class 4
  • Watertightness
    Class E
  • Wind load
    Class C5

This three-chamber window system offers improved thermal insulation and fire protection in classes EI30, EW30 and E30 according to EN 13501-2:2016-07. Fire protection applies in both directions, from the outside inwards and from the inside outwards.

  • Based on the Genesis 75 system, with 75 mm installation depth
  • Window types: Dreh (turnable), Kipp (tiltable) and Dreh-Kipp (turn and tilt)
  • Automation possible via AUMÜLLER AUMATIC and GEZE locking systems and electric opening drives
  • Burglary protection: ROTO AL fittings with the possibility of RC2 classification and a maximum load capacity of 160 kg
  • Fire rated glass: ANTIFIRE 22 from RETRE, available as single or double chamber glass (ESG, VSG)
  • Maximum dimensions: 1200 x 2150 mm
  • Wide range of profiles and sections within the Genesis 75 system for modern, functional windows
  • Suitable for both public and private buildings

Related products

Sapa Door 2060 EI15

Sapa Door 2060 E30

Sapa Door EI60 with flue gas density SA/S200

Sapa Dörr 3086 Butt Joint EI60

Sapa Door 2086 EI60

MC Fire Roof

Menu

Our systems